ПРИЁМНАЯ
МУНИЦИПАЛЬНОЕ ОБРАЗОВАНИЕ
«МУРИНСКОЕ ГОРОДСКОЕ ПОСЕЛЕНИЕ»
Официальный сайт
188662, Ленинградская обл. Всеволожский район г. Мурино ул. Оборонная, д.32-а
8 (812) 309-78-12
kan-murino@yandex.ru
Официальная группа
Администрация
Совет депутатов
Контрольно-счетная палата
Учреждения
Мурино
Общие сведения
Полезные страницы
Назад
Общая информация
Нормативные правовые акты
Муниципальный контроль
Муниципальные услуги
Муниципальные закупки
Муниципальная служба
Военно-учетный стол
Противодействие коррупции
Назад
Совет депутатов
Устав муниципального образования "Муринское городское поселение"
Проекты решений
Постановления/Распоряжения
Решения
Публичные слушания
Сведения о доходах и расходах депутатов
Назад
Общая информация
Представления, предписания
Иная информация
Нормативные акты
Деятельность Контрольно-счетной палаты
Планы
Назад
МКУ «Центр культуры и спорта»
МБУ "Редакция газеты "Муринская панорама"
МБУ "Содержание и развитие территории"
МБУ "Центр муниципальных услуг"
МБУ "Похоронная служба"
Назад
Экономико-географическое положение
Численность населения
История
Достопримечательности
Герб и флаг
Международное сотрудничество
Фотогалерея
Назад
Имущество
Экономика
Торговля и предпринимательство
Жильё
Бюджет
ЖКХ
Территориальная безопасность
Инициативные комиссии
Градостроительная деятельность
Транспортная инфраструктура
Назад
Контакты
Прием и выдача документов
Электронная приемная
Полезные ссылки
Назад
Земельный контроль
Жилищный контроль
Контроль в сфере благоустройства
Контроль на автомобильном транспорте, городском наземном электрическом транспорте и в дорожном хозяйстве
Назад
Многофункциональный центр
Информация для заявителей
Назад
Администрация
МБУ Содержание и развитие территории
МБУ Центр благоустройства и строительства
МКУ Центр муниципальных услуг
МБУ РГ Муринская панорама
Нормирование в сфере закупок
Назад
Форма анкеты для поступления на государственную службу Российской Федерации и муниципальную службу в Российской Федерации
Политика в отношении обработки персональных данных
Вакансии
Информация для граждан, впервые поступающих на службу в органы государственной власти и органы местного самоуправления
Сведения о доходах, расходах и имуществе муниципальных служащих
Назад
Служба по контракту
Объявления
Постановка на воинский учет
Оформление военного билета
Контакты
Регламентирующие документы
Назад
Сведения о доходах, расходах, об имуществе и обязательствах имущественного характера
Формы документов, связанных с противодействием коррупции, для заполнения
Нормативные правовые и иные акты в сфере противодействия коррупции
Антикоррупционная экспертиза
Методические материалы
Комиссия по противодействию коррупции
Обратная связь для сообщений о фактах коррупции
Комиссия по соблюдению требований к служебному поведению муниципальных служащих и урегулированию конфликта интересов
Назад
Глава муниципального образования
Депутаты
Избирательные округа
Комиссии совета депутатов
График приема
Назад
Постановления
Распоряжения
Назад
Положение о Контрольно-счетной палате
Назад
Контрольные мероприятия
План работы Контрольно-счетной палаты
Экспертно-аналитические мероприятия
Назад
Должностные лица, контакты
Документы
Планы работы
Молодёжный коворкинг-центр «МуриУм»
Кружки, клубы, секции
Библиотека
Назад
Общая информация
Должностные лица, контакты
Документы
Реквизиты
Архив газеты
Назад
Схема уборки территории
Должностные лица
Документы
Реквизиты, контакты
Назад
Должностные лица, контакты
Документы
Отчеты о деятельности
Назад
Нормативные правовые акты
Назад
Общая информация
2015
2014
2013
2012
2011
Назад
Нормативные правовые акты
Реестр муниципального имущества
Планы приватизации
Концессия
Информация о продажах
Выявление правообладателей
Кадастровая оценка
Назад
Прогнозы социально-экономического развития
Муниципальные программы
Назад
Информационные конструкции
Нормативно-правовые акты
Меры поддержки СМП
Схема НТО
Средства размещения
Объявления
Контакты
Как начать своё дело
Назад
Признание граждан нуждающимися в жилых помещениях с целью участия в федеральных и региональных программах
Включение молодых семей в состав участников федерального проекта «Содействие субъектам Российской Федерации в реализации полномочий по оказанию государственной поддержки гражданам в обеспечении жильем и оплате жилищно-коммунальных услуг»
Документальное обеспечение
Принятие на учет в качестве нуждающихся в жилых помещениях
Изменение, заключение, выдача дубликата договора социального найма
Приватизация жилых помещений
Справки об отказе от преимущественного права покупки доли в праве общей долевой собственности на жилые помещения
Обмен жилыми помещениями, предоставленными по договорам социального найма
Передача в поднаем жилого помещения, предоставленного по договору социального найма
Оплата за найм жилья
Жилищно-бытовая комиссия при администрации
Обязанности, права и ответственность нанимателей жилых помещений, предоставленных по договорам социального найма
Назад
Бюджет МО «Муринское городское поселение»
Нормативно-правовые акты о бюджете
Исполнение бюджета
Назад
Памятка для населения
Нормативно-правовые акты
Жилищное хозяйство
Коммунальное хозяйство
Благоустройство
Подготовка к отопительному сезону
Назад
Добровольная народная дружина
Информация для населения
Защита населения
Эвакуация транспорта
Назад
Реестр муниципальных маршрутов
Нормативно-правовые акты
Администрация
Общая информация
Нормативные правовые акты
Муниципальный контроль
Земельный контроль
Реестр категорированных объектов
Жилищный контроль
Контроль в сфере благоустройства
Контроль на автомобильном транспорте, городском наземном электрическом транспорте и в дорожном хозяйстве
Муниципальные услуги
Многофункциональный центр
Информация для заявителей
Муниципальные закупки
Администрация
МБУ Содержание и развитие территории
МБУ Центр благоустройства и строительства
МКУ Центр муниципальных услуг
МБУ РГ Муринская панорама
Нормирование в сфере закупок
Муниципальная служба
Форма анкеты для поступления на государственную службу Российской Федерации и муниципальную службу в Российской Федерации
Политика в отношении обработки персональных данных
Вакансии
Информация для граждан, впервые поступающих на службу в органы государственной власти и органы местного самоуправления
Сведения о доходах, расходах и имуществе муниципальных служащих
Военно-учетный стол
Служба по контракту
Объявления
Постановка на воинский учет
Оформление военного билета
Контакты
Регламентирующие документы
Противодействие коррупции
Сведения о доходах, расходах, об имуществе и обязательствах имущественного характера
Формы документов, связанных с противодействием коррупции, для заполнения
Нормативные правовые и иные акты в сфере противодействия коррупции
Иные нормативные правовые акты
Антикоррупционная экспертиза
Методические материалы
Комиссия по противодействию коррупции
Обратная связь для сообщений о фактах коррупции
Комиссия по соблюдению требований к служебному поведению муниципальных служащих и урегулированию конфликта интересов
Совет депутатов
Совет депутатов
Глава муниципального образования
Депутаты
Избирательные округа
Комиссии совета депутатов
График приема
Устав муниципального образования "Муринское городское поселение"
Проекты решений
Постановления/Распоряжения
Постановления
Распоряжения
Решения
Публичные слушания
Сведения о доходах и расходах депутатов
Контрольно-счетная палата
Общая информация
Представления, предписания
Иная информация
Нормативные акты
Положение о Контрольно-счетной палате
Деятельность Контрольно-счетной палаты
Контрольные мероприятия
План работы Контрольно-счетной палаты
Экспертно-аналитические мероприятия
Планы
Учреждения
МКУ «Центр культуры и спорта»
Должностные лица, контакты
Документы
Планы работы
Молодёжный коворкинг-центр «МуриУм»
Кружки, клубы, секции
Наши достижения
Наши коллективы
Расписание работы коллективов
Адресная программа развития дворового спорта
Библиотека
Документальное обеспечение
Режим работы
Культурно-досуговая деятельность
МБУ "Редакция газеты "Муринская панорама"
Общая информация
Должностные лица, контакты
Документы
Реквизиты
Архив газеты
МБУ "Содержание и развитие территории"
Схема уборки территории
Должностные лица
Документы
Реквизиты, контакты
МБУ "Центр муниципальных услуг"
Должностные лица, контакты
Документы
Отчеты о деятельности
МБУ "Похоронная служба"
Нормативные правовые акты
Мурино
Экономико-географическое положение
Численность населения
История
Достопримечательности
Герб и флаг
Международное сотрудничество
Общая информация
2015
2014
2013
2012
2011
Фотогалерея
Общие сведения
Имущество
Нормативные правовые акты
Реестр муниципального имущества
Планы приватизации
Концессия
Информация о продажах
Выявление правообладателей
Акты о проведении осмотра объектов
Решения о выявлении правообладателя
Перечень ранее учтенных объектов
Кадастровая оценка
Экономика
Прогнозы социально-экономического развития
Муниципальные программы
Нормативные акты
Ход реализации
Торговля и предпринимательство
Информационные конструкции
Нормативно-правовые акты
Меры поддержки СМП
Схема НТО
Средства размещения
Объявления
Контакты
Как начать своё дело
Жильё
Признание граждан нуждающимися в жилых помещениях с целью участия в федеральных и региональных программах
Включение молодых семей в состав участников федерального проекта «Содействие субъектам Российской Федерации в реализации полномочий по оказанию государственной поддержки гражданам в обеспечении жильем и оплате жилищно-коммунальных услуг»
Документальное обеспечение
Принятие на учет в качестве нуждающихся в жилых помещениях
Изменение, заключение, выдача дубликата договора социального найма
Приватизация жилых помещений
Справки об отказе от преимущественного права покупки доли в праве общей долевой собственности на жилые помещения
Обмен жилыми помещениями, предоставленными по договорам социального найма
Передача в поднаем жилого помещения, предоставленного по договору социального найма
Оплата за найм жилья
Жилищно-бытовая комиссия при администрации
Обязанности, права и ответственность нанимателей жилых помещений, предоставленных по договорам социального найма
Бюджет
Бюджет МО «Муринское городское поселение»
Бюджет МО "Муринское городское поселение": ПРОТОКОЛЫ
Бюджет муниципального образования "Муринское городское поселение": оценка эффективности
Бюджет для граждан
Бюджет МО "Муринское городское поселение": ПРОЕКТЫ
Нормативно-правовые акты о бюджете
нормативно-правовые акты о бюджете - 2025 год
нормативно-правовые акты о бюджетном процессе
Нормативно-правовые акты о бюджете - 2024 год
Исполнение бюджета
Отчеты об исполнении бюджета
Реестр расходных обязательств
ЖКХ
Памятка для населения
Нормативно-правовые акты
Жилищное хозяйство
Азбука для потребителей услуг ЖКХ
Перечень управляющих организаций, действующих на территории поселения
Тарифы
Капитальный ремонт
Сайты управляющих организаций, ТСЖ
Коммунальное хозяйство
Планы подготовки к отопительному сезону
Водоснабжение и водоотведение
Электроснабжение
Теплоснабжение
Газоснабжение
Благоустройство
Рекреационные зоны
Выполнение работ по благоустройству
Нормативно-правовые акты
Формирование комфортной городской среды
Реестр площадок ТКО
Подготовка к отопительному сезону
Территориальная безопасность
Добровольная народная дружина
Информация для населения
Защита населения
Состояние защиты населения и территории от чрезвычайных ситуаций и принятых мерах по обеспечению их безопасности
Эвакуация транспорта
Инициативные комиссии
Градостроительная деятельность
Транспортная инфраструктура
Реестр муниципальных маршрутов
Нормативно-правовые акты
Полезные страницы
Контакты
Прием и выдача документов
Электронная приемная
Полезные ссылки
Градостроительная деятельность - 2010 год
ЭЛЕКТРОННАЯ
ПРИЕМНАЯ
Подать обращение
Главная
→
Общие сведения
→
Градостроительная деятельность
→
Градостроительная деятельность - 2010 год
→
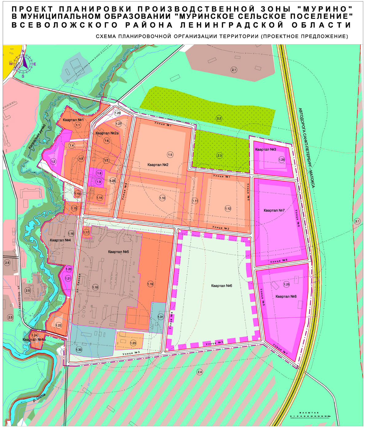
Схема планировочной организации территории(проектное предложение)
Схема планировочной организации территории(проектное предложение)
1 января 2010 12:00
Скачать документ
Не убран снег, яма на дороге, не горит фонарь?
Столкнулись с проблемой — сообщите о ней!
Сообщить о проблеме
Решаем вместе
← Градостроительная деятельность - 2010 год